Appartamenti in bel palazzo storico nel centro di Prato completamente ristrutturati in un complesso elegante con finiture di pregio. Il palazzo offre varie metrature di appartamento per soddisfare molteplici esigenze nel comfort di una struttura dove il fascino del tempo incontra il design all“avanguardia.
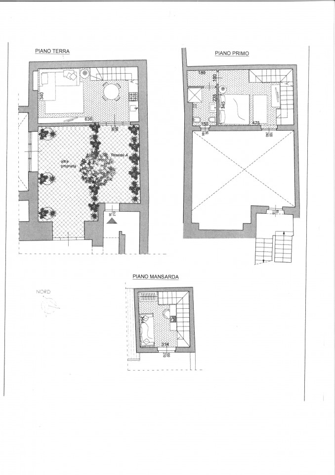
App. n. 2
Appartamento con resede privata, su tre livelli con accesso da corte condominiale e graziosi affacci. Al piano terra troviamo un soggiorno con angolo cottura e un resede di proprietą; al primo piano una grande camera matrimoniale con bagno mentre al piano superiore/mansarda la possibilitą di realizzare una camera singola. Possibilitą di acquistare posti auto e garage