347 7373175 (Laura) - 336 651309 (Berta) - 393 9656904 (Titta/Laura)
VENDITA

Appartamento - Prato

Centro storico

Appartamenti in bel palazzo storico nel centro di Prato completamente ristrutturati in un complesso elegante con finiture di pregio. Il palazzo offre varie metrature di appartamento per soddisfare molteplici esigenze nel comfort di una struttura dove il fascino del tempo incontra il design all“avanguardia. Ottima classe energetica.
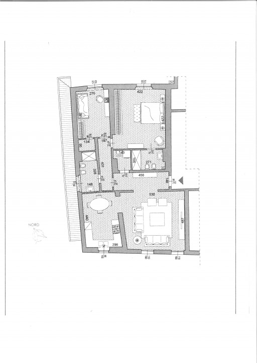
App. n. 7
Appartamento al terzo piano, molto luminoso, con doppio affaccio. Ottima suddivisione interna che offre un un ampio soggiorno, cucina abitabile, vano lavanderia, camera matrimoniale con bagno interno, camera singola e altro bagno. Servito da ascensore. Possibilitą di acquistare posti auto e garage.

RIF:
02163 PO
TIPOLOGIA:
Appartamento
MTQ:
115
VANI:
4
SERVIZI:
2
CAMERE:
2
ASCENSORE:
SI
CLASSE ENERGETICA:
A+
€. 520.000
GALLERIA FOTOGRAFICA